| 賃料 | $ 3,450 /月 |
|---|---|
| 保証金 | $ 3,450 |
| 手数料 | 家賃の1ヶ月分 |
| 間取り | 1ベッドルーム |
|---|---|
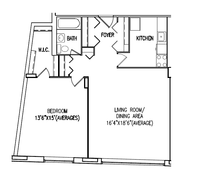
| 広さ | 758 sq.ft. (約 70.494 m²) |
| 築年数 | 1964 年 |
| 階数 | 2 階 |
| 物件タイプ | アパート |
| 契約種別 | 賃貸・アパート |
|---|---|
| 契約期間 | 年間契約(契約期間の相談可) |
| 入居時期 | 6/15/2026 |
| 沿線・駅 (※徒歩分数は、目安としてご活用ください) | ||||
|---|---|---|---|---|
|
| 建物設備 |
|
|---|---|
| 部屋設備 |
|
●大通りBeacon Streetを一本入った住宅地にあるアパートメント。明るく清潔感のあるロビー。
●エレベーターあり。パッケージ受取りサービスあり。
●ドアマン、メンテナンスオフィス常駐で安心。
●ブルックラインでは貴重なガレージ駐車場あり。別途料金がかかります。
●今回は1階で中庭の緑が眺められるお部屋です。
●ボストン大学、ロングウッドメディカルエリアは徒歩圏内!ローレンス小学校も徒歩15分圏。
●スーパーWhole Foodsまで徒歩約3分!日系のベーカリーも近くにございます。
●フェンウェイパークまで徒歩約12分。フェンウェイエリアも足を運びやすい距離です。
●建物地下部に共用ランドリールームあり。その他屋外プール、会員制レンタカーZipカー置き場もございます。
●室内写真は別室のものです。建物内に様々な間取りがございます。空き状況は随時変わりますのでどうぞお問い合わせください。
大学・研究機関に通う方にオススメ
- ボストン大学 / Boston University
- バークリー音楽大学 / Berklee College of Music
- ロングウッドメディカル / Longwood Medical