| 賃料 | $ 2,600 /月 |
|---|---|
| 保証金 | $ 2,600 |
| 手数料 | 家賃の1ヶ月分 |
| 間取り | 1ベッドルーム |
|---|---|
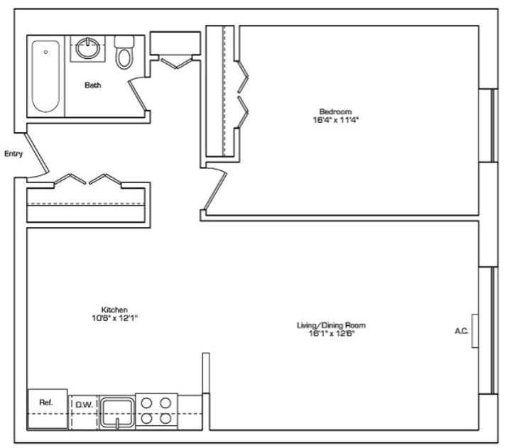
| 広さ | 653 sq.ft. (約 60.729 m²) |
| 物件タイプ | アパート |
| 契約種別 | 賃貸・アパート |
|---|---|
| 契約期間 | 年間契約 |
| 沿線・駅 (※徒歩分数は、目安としてご活用ください) | ||||
|---|---|---|---|---|
|
| 建物設備 |
|
|---|---|
| 部屋設備 |
|
●室内写真は別室のものです。
●ブルックラインの閑静な通りにあるアパートです。
●クーリッジコーナーとボストン大学の間に立地。グリーンラインB・C両線にアクセス良し。
●暖房費・水道費は家賃に込み
●屋外駐車場代は$185/月(空き状況次第)
●Under Graduateの学生さんも歓迎の物件。
大学・研究機関に通う方にオススメ
- ボストン大学 / Boston University