| 賃料 | $ 3,387 /月 |
|---|---|
| 保証金 | $ 3,387 |
| 手数料 | 家賃の1ヶ月分 |
| 間取り | 1ベッドルーム |
|---|---|
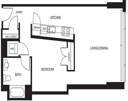
| 広さ | 742 sq.ft. (約 69.006 m²) |
| 階数 | 3 階 |
| 物件タイプ | アパート |
| 契約種別 | 賃貸・アパート |
|---|---|
| 契約期間 | 年間契約(契約期間の相談可) |
| 入居時期 | 06/25/2025 |
| 沿線・駅 (※徒歩分数は、目安としてご活用ください) | |||
|---|---|---|---|
|
| 建物設備 |
|
|---|---|
| 部屋設備 |
|
●MITやセントラルスクエアに歩いて行ける距離のアパートメント。
●高い天井と大きな窓、むき出しのMetal Deck、オープンで仕切りの少ないユニークな間取りが特徴。個性的な物件がお好きな方におすすめ。
●ランドリー室内完備。
●MGHやハーバード大学にもアクセス良しです。
(掲載写真はモデルルームの写真です)
●お申し込み日・ご契約期間によってお家賃は変動します。詳細については、お問い合わせください。
●レンタル家具・車のご紹介も行っております!!
大学・研究機関に通う方にオススメ
- ハーバード大学 / Harvard University
- マサチューセッツ工科大学 / Massachusetts Institute of Technology
- マサチューセッツ総合病院 / Massachusetts General Hospital