| 賃料 | $ 3,509 /月 |
|---|---|
| 保証金 | $ 3,509 |
| 手数料 | 家賃の1ヶ月分 |
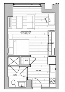
| 間取り | スタジオ |
|---|---|
| 広さ | 468 sq.ft. (約 43.524 m²) |
| 築年数 | 2015 年 |
| 階数 | 4 階 (9 階建) |
| 物件タイプ | アパート |
| 契約種別 | 賃貸・アパート |
|---|---|
| 契約期間 | 年間契約(契約期間の相談可) |
| 沿線・駅 (※徒歩分数は、目安としてご活用ください) | ||||
|---|---|---|---|---|
|
| 建物設備 |
|
|---|---|
| 部屋設備 |
|
●2015年8月オープン。ハーバードビジネススクール徒歩圏のアパートメント。
●66番バスでハーバードスクエア、ブルックライン、ロングウッドメディカルにもアクセスよし。
●人気スーパーTrader Joesが建物1階に入っており便利です!
●建物内設備として、24時間コンシェルジュサービス、フィットネスジム、ゲームルーム、ドッグスパ、ビリヤード台があります。
●キッチンスペースには冷蔵庫・電子レンジ・食洗機、オーブン、電気コンロがついております。
●レンタル・購入の家具屋さん、お車のレンタル・購入の日本語対応いただけるディーラーさんのご紹介も行っております!!お問合せ時にお気軽にお申し出ください!!
●建物内にスタジオ~3ベッドルームまでの間取りのご用意がございます。
●写真はモデルルームの写真です。
●家賃はご契約期間・お申込日によって変動します(詳細はお問合せお待ちいたしております。)
大学・研究機関に通う方にオススメ
- ハーバード大学 / Harvard University