| 賃料 | $ 3,395 /月 |
|---|---|
| 手数料 | 応相談 |
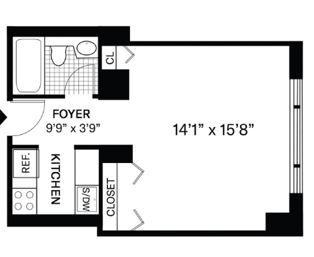
| 間取り | スタジオ |
|---|---|
| 広さ | 400 sq.ft. (約 37.2 m²) |
| 築年数 | 1986 年 |
| 階数 | 25 階 (41 階建) |
| 物件タイプ | コンドミニアム |
| 契約種別 | 賃貸・アパート |
|---|---|
| 契約期間 | 年間契約 |
| 沿線・駅 | ||||||||
|---|---|---|---|---|---|---|---|---|
|
| 建物設備 |
|
|---|---|
| 部屋設備 |
|
グランドセントラル駅近くにある高層コンドミニアム。ミッドタウンイーストにオフィスがある方は会社まで徒歩圏内の便利な立地です。お部屋はひとり暮らしにお勧めな1ルームの間取り。ジムやプールがアパートに併設、ドアマンビルなのでセキュリティも安心。近くには米系スーパー他、日系スーパーも多数ありお買い物も便利です。