| 賃料 | $ 8,150 /月 |
|---|---|
| 保証金 | $ 5,030 |
| 手数料 | 応相談 |
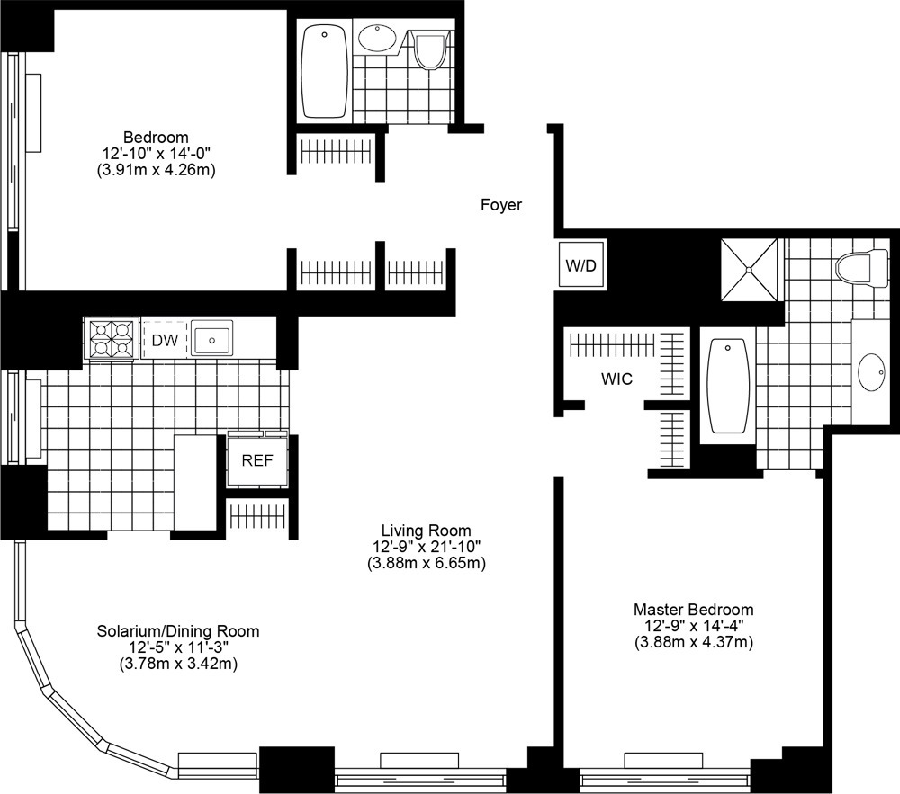
| 間取り | 2ベッドルーム |
|---|---|
| 広さ | - sq.ft. |
| 築年数 | 1994 年 |
| 階数 | 26 階 (48 階建) |
| 物件タイプ | 高層アパート |
| 契約種別 | 賃貸・アパート |
|---|---|
| 契約期間 | 年間契約 |
| 沿線・駅 | ||||||||
|---|---|---|---|---|---|---|---|---|
|
| 建物設備 |
|
|---|---|
| 部屋設備 |
|
アッパーイーストのレンタルビル。
24時間ドアマン、プール付きジム完備の広めの1ベットルーム。
洗濯機乾燥機が室内に完備。地下鉄4.5.6.番線86丁目より徒歩10分。