| 賃料 | $ 5,900 /月 |
|---|---|
| 保証金 | $ 5,900 |
| 手数料 | 応相談 |
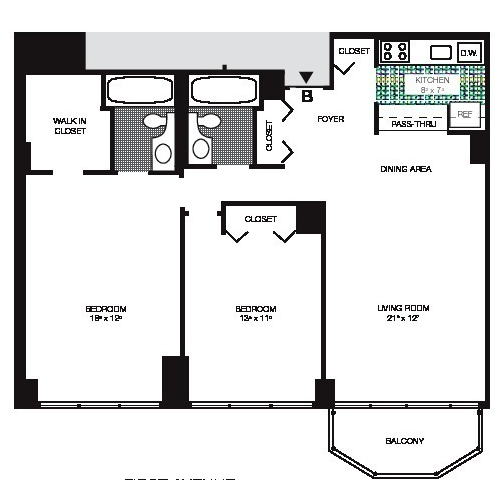
| 間取り | 2ベッドルーム |
|---|---|
| 広さ | 1020 sq.ft. (約 94.86 m²) |
| 築年数 | 1981 年 |
| 物件タイプ | 高層アパート |
| 契約種別 | 賃貸・アパート |
|---|---|
| 契約期間 | 年間契約 |
| 沿線・駅 | ||||
|---|---|---|---|---|
|
| 建物設備 |
|
|---|---|
| 部屋設備 |
|
●ミッドタウンイーストバルコニー付きの2BR/2bath
●安心のドアマン付きアパートメント
●エレベータ、ランドリールーム、パッケージルーム完備
●人気大手スーパー、大手オーガニックスーパー、日系のスーパーも近くに有り、お買い物も便利
※写真は実際のお部屋と異なる事があります。詳しくはお問合せください