| 賃料 | $ 3,350 /月 |
|---|---|
| 保証金 | 家賃1ヶ月分 |
| 手数料 | 応相談 |
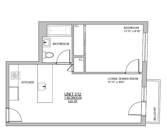
| 間取り | 1ベッドルーム |
|---|---|
| 広さ | 522 sq.ft. (約 48.546 m²) |
| 築年数 | 2022 年 |
| 階数 | 5 階 (7 階建) |
| 物件タイプ | 低層アパート |
| 契約種別 | 賃貸・アパート |
|---|---|
| 契約期間 | 年間契約 |
| 沿線・駅 | ||||||||
|---|---|---|---|---|---|---|---|---|
|
| 建物設備 |
|
|---|---|
| 部屋設備 |
|
●築浅ビルディング
●安心のドアマン付きアパートメント
●モダンな内装でアイランドキッチン、
●フェリー乗り場も近くWall Street,Brooklyn Navy Yard, East 34th Streetまで乗り換えなしで行けます
※写真は実際のお部屋と異なる事があります。同アパート内には様々な間取りがありますので、詳しくはお問合せください